闻令而动,争分夺秒|宏盛建业驰援上饶市医疗废物暂存站建设
发布日期:2020-02-17

闻令而动,再显担当。2月16日,上饶市第二人民医院新冠肺炎医疗废物暂存站新建项目正式开建,这是继承担第二人民医院防疫负压病房旁建设任务之后,宏盛建业建设者再一次投入到疫情防控战斗中。项目建成后,将保障防疫废弃物废物的有效处置,避免病毒通过废弃物传播。

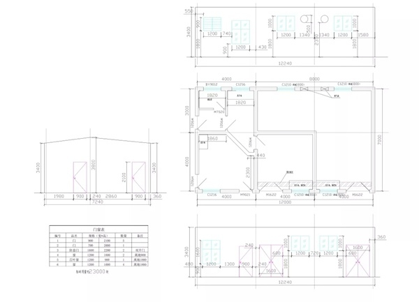
2月15日,公司接到上饶市疫情防控指挥部指令后,立即组建指挥部,与院方进行沟通,细化项目图纸,仅用一天时间便确定了具体的施工方案,并完成各项准备工作。该医疗废物暂存站总建筑面积约90平米,结构类型为砖砌体,建筑高度3.8m(一层),分3个房间。按计划,项目将在15天内完工。

由于施工地毗邻医院内患者收容点,给施工人员个人防护提出了更高要求。同时,项目工期紧,工序多,相应的材料采购及人员组织也为本次施工带来了一定的难度。

勇者无惧、战之必胜。宏盛建设者将再次以非凡力量,非常速度,攻坚克难,加紧建设,为打赢疫情攻坚战贡献力量。
